| Projet de reconstruction de Timzgid Assaka |
|
جمعية أساكا نتهالا للتنمية والتعاون Association Assaka n’Tahala pour le Développement et la Coopération |
![]() |
||
|
مشروع بناء "مسجد أساكا" Projet de construction : " Mosquée Assaka" |
|||
|
دوار أساكا نتهالا الجماعة القروية اريغ نتهالة دائرة
تافراوت
عمالة اقليم تيزنيت |
![]() |
Douar Assaka n’Tahala C.R Irigh n’Tahala, Cercle Tafraout Province de Tiznit |
|
|
رقم الرخصة : |
11/2015 |
Numéro d'authorisation : |
|
|
صاحب المشروع : |
جمعية أساكا نتهالا
A.A.D.C |
Maitre d’ouvrage : |
|
|
المساحة : |
110m2 |
Surface : |
|
|
مهندس المشروع : |
Mme Zineb El Houm -
Agadir |
Architecte : |
|
|
مكتب
الدراسات : |
ETAM - ETUDES - Rabat |
Bureau d'Etude
: |
|
|
مكتب التتبع و المراقبة : |
Le ZED MEDITIRRANEEN - Tiznit
|
Bureau de contrôle
: |
|
|
رقم
الحساب بالبنك الشعبي : |
Numéro de compte à la Banque Populaire : |
||
|
Code Swift : BCPOMAMCELJ |
|||
|
MA 117 170 21116 42324090001 86 |
|||
|
للمزيد من المعلومات يرجى الاتصال
بالرقم : |
06 67
01 08 08 |
Pour toute information, contacter
le : |
|
| Planning et Avancement du projet "Timzgid Assaka" |
Deux axes sont entamés en parallele:
- Un premier axe consiste à la création de l'association Assaka n'Tahala et son compte bancaire
- Un deuxieme axe consiste à établir un dossier pour l'autorisation de construction de Timzgid Assaka et entamer les travaux de construction de celle-ci
| Date | Evenement | Avancement |
| 01/01/2014 | Récupération de l'ancien dossier de Timzgid depuis Lmaalem Brahim à Tafraout | Accomplie |
| 02/01/2014 | Depot du dossier pour la création de l'Association Assaka n'tahala pour le Développement et la Coopération (AADC) | Accomplie |
| 03/01/2014 | Prise de contact avec Mr Hakim à Tafraout pour relancer le dossier de Timzgid | Accomplie |
| 20/01/2014 | Engagement d'un topographe pour etablir un plan de bornage de Timzgid | Accomplie |
| 26/01/2014 | Le Topographe s'est déplacé à Assaka pour prendre les mesures de Timzgid (120m2) | Accomplie |
| 29/01/2014 | Mr Hakim reçoit 2000 DH de la part du président de l'association pour financer le plan de bornage de Timzgid | Accomplie |
| 07/02/2014 | Dépot du dossier à la banque pour la création du compte bancaire de l'association Assaka | Accomplie |
| 15/02/2014 | Recéption de l'avant-projet du plan de bornage de Timzgid | Accomplie |
| 20/02/2014 | Delivrance du reçu provisoire de l'association Assaka par les autorités locales (Qiyada de Tahala) | Accomplie |
| 25/02/2014 | Reception du reçu provisoire par le président de l'association Assaka | Accomplie |
| 26/02/2014 | Depot du dossier pour la création des cachets de l'association Assaka | Accomplie |
| 28/02/2014 | Recéption du plan de bornage definitif de Timzgid | Accomplie |
| 03/03/2014 | Prise de contact avec l'ancien architecte du projet basé à Agadir pour le plan de Timzgid en collaboration avec Mr Hakim | Accomplie |
| 05/03/2014 | Reception des cachets de l'association Assaka | Accomplie |
| 13/03/2014 | Signatures conjointes à la banque du trésorier et du président de l'association Assaka | Accomplie |
| 10/04/2014 | Réponse favorable provisoire de la banque à condition de fournir le reçu definitif de l'association Assaka | Accomplie |
| 14/04/2014 | Delivrance du reçu définitif de l'association Assaka par les autorités locales (Lqiyada de Tahala) | Accomplie |
| 15/04/2014 | Reception du 1er plan d'architecte de Timzgid (version electronique) | Accomplie |
| 15/04/2014 | Mr Hakim reçoit 3000 DH de la part du président de l'association pour financer le dossier d'architecte de Timzgid | Accomplie |
| 21/04/2014 | Récupération du dossier d'architecte de Timzgid depuis le cabinet d'architecture à Agadir | Accomplie |
| 22/04/2014 | Legalisation des 6 exemplaires des pieces du dossier de Timzgid auprés de la commune rurale Irigh n'Tahala | Accomplie |
| 23/04/2014 | Depot du dossier complet de Timzgid en 6 exemplaires auprès des autorités locales (Qiyada de Tahala) | Accomplie |
| 24/04/2014 | Récupération de quelques équipements precieux de Timzgid afin de les proteger contre le vol. | Accomplie |
| 15/05/2014 | Reception du reçu définitif par le président de l'association Assaka et depot de celui-ci à la banque | Accomplie |
| 26/05/2014 | Traitement du dossier de Timzgid par la commission chargée des mosquées de la province de Tiznit | Accomplie |
| 02/06/2014 | Réponse de la province de Tiznit concernant la demande de reconstruction de Timzgid par des remarques | Accomplie |
| 02/06/2014 | La réponse de Tiznit est envoyée à l'architecte afin de rectifier le plan de Timzgid selon les remarques de la commission | Accomplie |
| 09/06/2014 | Desinstallation des Tuyaux, des portes, des fenetres et des tapis...etc de Timzgid afin de les proteger contre le vol. | Accomplie |
| 12/06/2014 | Transfert de 650 DH de la part de l'association pour financer la desinstallation des équipements de Timzgid | Accomplie |
| 20/06/2014 | Réponse favorable definitive de la banque pour la creation du compte bancaire de l'association Assaka | Accomplie |
| 10/07/2014 | Reception de l'avant-projet du plan d'architecte de Timzgid respectant les remarques de la commission | Accomplie |
| 30/07/2014 | Mise à jour du site Web de l'association Assaka avec un dossier consacré à la reconstruction de Timzgid | Accomplie |
| 12/09/2014 | Déposition de l'attestation de Propriété de Timzgid récupérée depuis "Nadarat Al Awqaf de Tiznit", à la province de Tiznit | Accomplie |
| 18/09/2014 | Réception des imprimés du nouveau plan d'architecte finalisé et rectifié depuis l'architecte à Agadir | Accomplie. |
| 22/09/2014 | Déposition du nouveau plan d'architecte à la province de Tiznit | Accomplie. |
| 22/10/2014 | La commission a donné l'accord de principe à la construction de la mosquée. | Accomplie. |
| 23/10/2014 | L'ingenieur de beton a commencé à travailler sur le plan de beton, d'electricité..etc en collaboration avec l'architecte | Accomplie. |
| 21/11/2014 | Le projet a eu l'avis favorable de construction sous reserve du plan beton armé agréé par un bureau de control | Accomplie. |
| 24/11/2014 | Prise de contact avec un bureau de controle à Tiznit pour assurer le suivi, le controle et la coordination du projet | Accomplie. |
| 16/12/2014 | Le bureau d'étude envoie l'avant-projet du plan beton armé et celui de distribution electrique au bureau de controle | Accomplie. |
| 31/12/2014 | Prise de contact avec le laboratoire d'analyse geotechnique à Agadir pour l'analyse du sol de construction | Accomplie. |
| 04/01/2015 | Accomplissement des forages necessaires à l'analyse géotechnique (2 mètres de profondeur) | Accomplie. |
| 07/01/2015 | Transfert de 350 DH de la part de l'association Assaka pour financer les forages | Accomplie. |
| 07/01/2015 | Le bureau d'étude envoie l'avant-projet du carnet des poutres au bureau de controle | Accomplie. |
| 13/01/2015 | Déplacement de l'équipe du laboratoire d'analyse à Assaka pour les prélévements necessaires à l'analyse | Accomplie. |
| 19/01/2015 | Le bureau de controle examine les plans et transmet ses premieres observations au bureau d'étude | Accomplie. |
| 04/02/2015 | Le laboratoire envoie les resultats d'analyse au bureau d'etude afin de finaliser le plan beton armé | Accomplie. |
| 24/02/2015 - 03/04/2015 | Longue série de correspondances entre le bureau de controle, l'association et le bureau d'étude afin de finaliser le plan beton (Coffrage, Ferraillage et Cahier des poutres) de la mosquée et le minaret | Accomplie. |
| 09/04/2015 | Trois Panneaus d'affichage metaliques sont commandés auprès de d'un forgeron à Tafraout par l'association Assaka | Accomplie. |
| 16/04/2015 | Les plans beton armé est validé par le bureau de controle et a été déposé aupès de la province de Tiznit | Accomplie. |
| 26/04/2015 | La province de Tiznit a confirmé à l'association le numéro 11/2015 pour l'autorisation de construire de la mosquée | Accomplie. |
| 29/04/2015 | Finalisation du design de l'affiche du projet et commande de l'impression numérique en format 120x120 et deux autres en 80x80 | Accomplie. |
| 26/05/2015 | Récupération de l'autorisation de construction et le dossier original depuis la province de Tiznit | Accomplie. |
| 27/05/2015 | Etablissement d'un contrat de construction entre l'association et l'entrepreneur à Tafraout | Accomplie. |
| 28/05/2015 | Installation des trois panneaux d'affichage au douar de Assaka | Accomplie. |
| 05/06/2015 | Début des travaux de démolition de l'ancienne mosquée de Assaka apres securisation de la route et des passages et apres avoir informé le bureau de controle et l'architecte | Accomplie. |
| 11/06/2015 | Virement de la premiere partie des frais des travaux de démolition de l'ancienne Timzgid de Assaka | Accomplie |
| 23/06/2015 | Virement de la 2eme partie des frais des travaux de démolition de l'ancienne Timzgid de Assaka | Accomplie |
| xx/07/2015 | Fin des travaux de démolition de l'ancienne Timzgid de Assaka | Accomplie |
| xx/07/2015 | Virement de la 3eme partie des frais des travaux de démolition de l'ancienne Timzgid de Assaka | Accomplie |
Pour plus d'information, veuillez contacter le 06 67 01 08 08
| Ancienne Timzgid de Assaka |
La mosquée Assaka "Timzgid" est une vieille mosquée qui date d'environ 200 ans. Elle est située
au douar Assaka n'Tahala sur une petite colline du village appelée par nos ancetres
"Ikharban". Au sein de la mosquée Assaka, les habitants de Assaka ont pu
benificier d'une éducation coranique génération apres génération et ce grace à
des Imams competents formés par les écoles "Lamdersst" tres réputées de Souss . Nous
tenons à présenter un grand hommage et une grande reconnaissance à notre honorable Imam
Lhaj Said Akarid
qui a été le dernier Imam de Assaka et qui a éduqué, enseigné et celebré les prieres pendant plus de
60 ans au sein de
la mosquée en question.
La mosquée Assaka a malheureusement subit des endomagements considerables et une
destruction partielle suite au pluies abondantes de l'année 2008-2009 (voir photos).
Lors de l'assemblée générale de l'association Assaka, Il a été
decidé par unanimité de mettre le dossier de la reconstruction de
Timzgid Assaka parmi les priorités urgentes du plan d’action. Cette reconstruction se fera
(in chaa llah) au même emplacement que l’ancienne mosquée partiellement détruite
depuis 2009.
A ce sujet, l’association sera chargée de monter le dossier de demande d’autorisation
de reconstruction au prés des services concernés à la
province de Tiznit et ce en coordination avec les autorités locales (Qiyada de Tahala).
| Façades de la nouvelle Timzgid |
Façade principale

Façade latérale gauche

Façade arrière

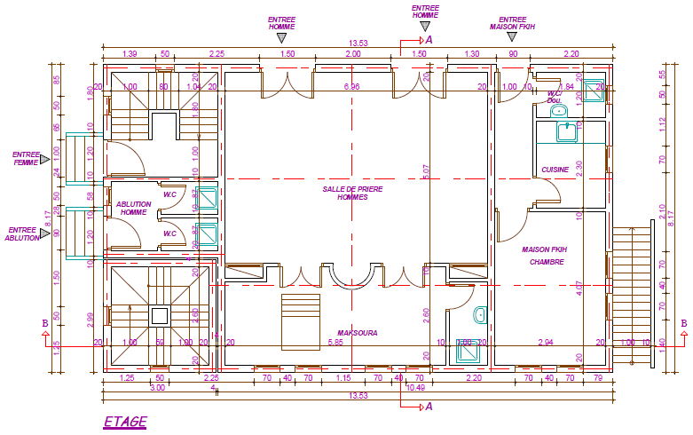
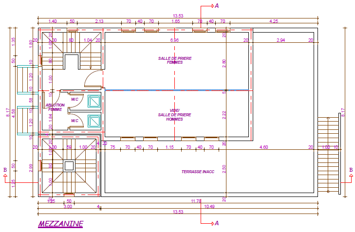
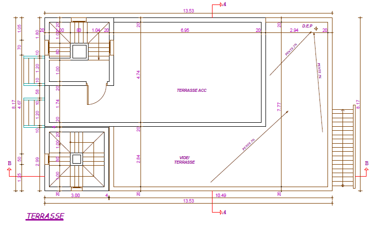
| Plans Architecte de la nouvelle Timzgid |





| Travaux de construction |
Opération de démolition de l'ancienne Timzgid de Assaka










